Plans

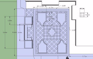
Examples of garden plans that I produce to make your and my life easier visualising the garden and establishing how to build it and it's cost.

armillary and garden layout
Address

Boscastle
North Cornwall

HTML Website Creator